Fakta om lokalen
|
Adress: Stig sunnes väg 2, Bromölla |
|
|
Typ av lokal: Behandling, kontor |
|
|
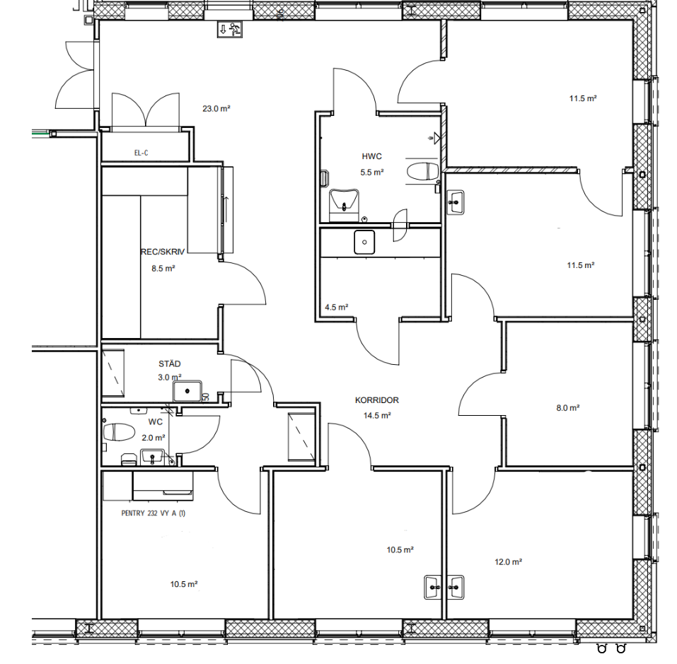
Yta: 134 m2 |
|
|
Tillträde: Efter överenskommelse |
|
Beskrivning av lokalen
Flexibel och välplanerad lokal mitt i centrala Bromölla. Lokalen är uppdelad i flera rum, de flesta utrustade med vask – vilket gör den idealisk för exempelvis behandlingsverksamhet, kontor eller annan företagsverksamhet.
Här finns plats för reception, mötesrum och tillgång till handikappanpassad WC. Gemensamma konferensytor i huset kan bokas vid behov.
Stor och gratis parkering finns precis utanför, vilket gör detta till en funktionell och bekväm lokal i ett attraktivt läge – redo att anpassas efter din verksamhet.
Kontaktuppgifter:
|
AB BromöllaHem |
|
|
Telefon: 0456-622400 |
|
|
E-post: Info@bromollahem.se |
|
