Kyrkvägen 3, Bromölla
Fakta om lokalen
|
Adress: Kyrkvägen 3, Bromölla |
|
|
Typ av lokal: Kontor |
|
|
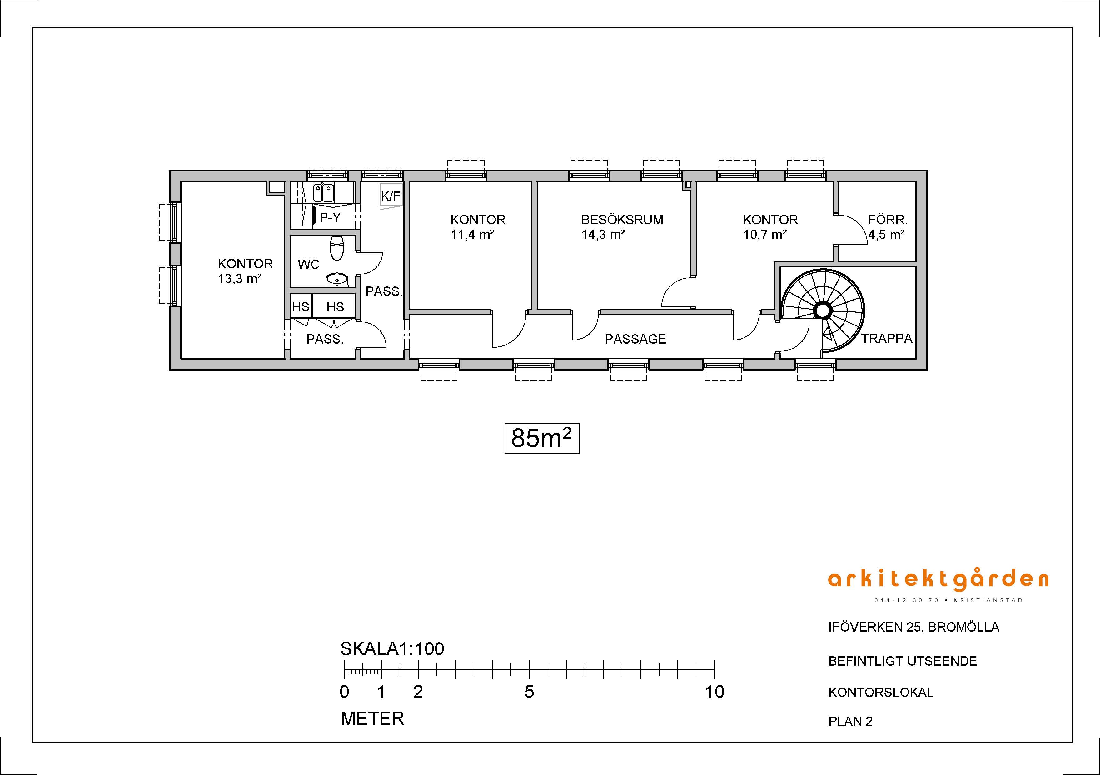
Yta: 85 m2 |
|
|
Tillträde: Efter överenskommelse
|
|


Beskrivning av lokalen
Ljus och välplanerad kontorslokal på 85 m² belägen på andra våningen. Lokalen omfattar fyra rum som lämpar sig väl för kontor eller konferensrum, WC och pentry. De stora fönstren ger ett fint ljusinsläpp och skapar en trivsam arbetsmiljö. Utanför fastigheten finns gott om parkeringsmöjligheter för både personal och besökare. I närområdet finns flera företag och verksamheter, och inom någon minuts promenad når du Bromöllas centrum med service, butiker och restauranger, vilket ger ett bekvämt och lättillgängligt läge
Kontaktuppgifter
|
AB BromöllaHem |
|
|
Telefon: 0456-622400 |
|
|
E-post: Info@bromollahem.se |
|